A Captivating Single Story










Home Details and Features
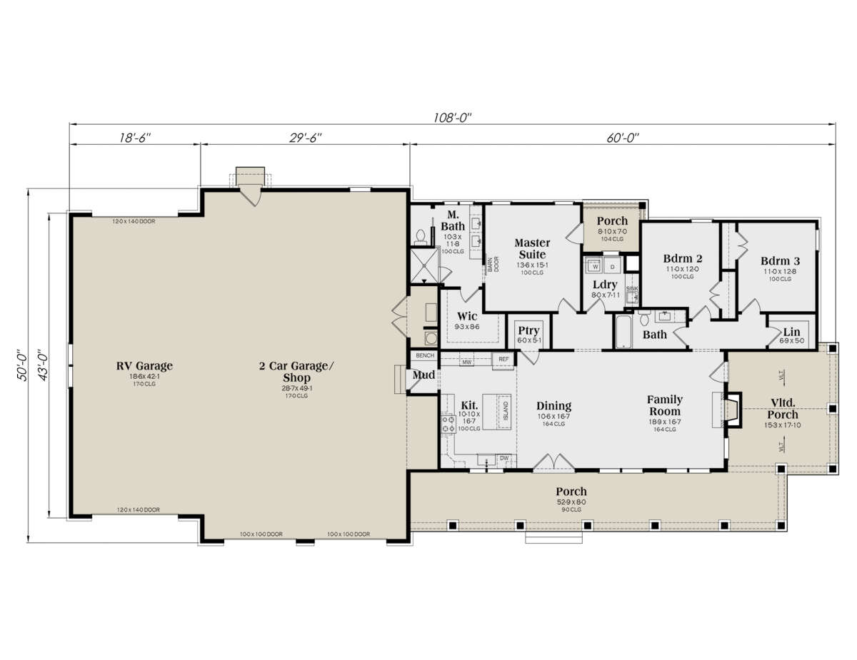
1,780 Sq. Feet | 3 Beds | 2 Baths | 3 Car Garage
1) Master on Main Floor
2) RV Bay Workshop
3) Kitchen Island with Open Floor Plan
4) Wrap Around Porch (Front, Rear, and Side)
5) Mud Room and Laundry on Main Floor
